Продається квартира Тролейбусна вул., Тернопіль, Тернопільська, Дружба (№ 213-269-022)
Ціна: 89 900 $

Тролейбусна вул., Тернопіль, Тернопільська, Дружба
Характеристики
| Ціна: | 89 900 $ |
|---|---|
| № об'єкта: | 213-269-022 |
| Кімнат: | 3 |
| Поверх: | 8 / 10 |
| Площа: | 86 / - / - м2 |
Опис
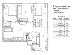
3-кімнатна квартира
вул. Тролейбусна (новобудова)
Загальна площа 86м.кв
Поверх 8/10, в будинку є ліфт Функціональне та продумане планування: велика кухня-вітальня, два санвузли, дві спальні з окремими гардеробними та одна кімната довільного призначення
Вигляд з вікон на парк та все місто
Поруч є все необхідне: парк, школи, садочки, магазини, зупинки громадського транспорту В квартирі зроблені чорнові етапи ремонту: Індивідуальне газове опалення тепла підлога, батареї, газовий котел Електрика розетки, прохідні вимикачі, багато декоративних LED підсвіток, різні сценарії освітлення Закладені магістралі для кондиціонерів в кожній кімнаті (4шт) Встановлені інсталяції для підвісного унітазу (2шт) Штукатурка гіпсова та цементно-вапняна Напівсуха стяжка підлоги Зовнішнє утеплення пінопластом Квартира готова до виконання чистових робіт Продаж від власника Переуступка дольової участі (без комісії та податку для покупця)
Можливе виконання ремонту під ключ для нових власників
За детальною інформацією телефонуйте!
















