Продається квартира 15 квітня(Байківці), Тернопіль, Тернопільська, БАМ (№ 213-133-169)
Ціна: 25 400 $

15 квітня(Байківці), Тернопіль, Тернопільська, БАМ
Характеристики
| Ціна: | 25 400 $ |
|---|---|
| № об'єкта: | 213-133-169 |
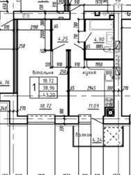
| Кімнат: | 1 розд |
| Поверх: | 3 / 9 ліфт |
| Площа: | 43 / - / - м2 |
| Санвузол: | 1 |
| Балкон: | балкон |
| Додатково: | новобудова |
Опис
Тернопіль, Молодіжний, вул. 15-го Квітня,Байківці
Продаж 1 кім квартири 43.2 кв. м
-Якісне цегельне будівництво
-Індивідуальне газове опалення
-В ціну входить: металопластикові вікна, чорнова штукатурка та вхідні двері.
-Висота стелі 2, 7 м
Здача будинку в 2025 році!

















