Продається квартира Енергетична Бічна вул., Тернопіль, Тернопільська, Центр (№ 213-095-185)
Ціна: 155 000 $

Енергетична Бічна вул., Тернопіль, Тернопільська, Центр
Характеристики
| Ціна: | 155 000 $ |
|---|---|
| № об'єкта: | 213-095-185 |
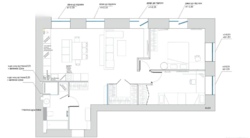
| Кімнат: | 3 розд, студія |
| Поверх: | 10 / 12 ліфт |
| Площа: | 93 / 30 / 35 м2 |
| Санвузол: | 1 сумісний |
| Балкон: | тераса |
| Додатково: | новобудова |
Опис
Продається чудова 3-кімнатна квартира-студія в новобудові за адресою : Тернопіль, ЖК Квартал.
Дизайн квартири виконано у спокійний тонах, акцент на дерев’яну фактуру , LED підсвітку , треки. Стеля – шумоізоляція + 2 листи гіпсокартону , підвісна .
Загальна площа квартири складає 93 кв.м, з яких кухня – 35 кв.м. Просторі кімнати та сучасний дизайн забезпечать комфортне проживання для вас та вашої родини.
Тераса для відпочинку на свіжому повітрі.
Простора кухня-студія стане чудовим місцем для сімейних зустрічей та вечірок з друзями. Вікна виходять на тихий двір, що забезпечує спокій та затишок.
Район з розвинутою інфраструктурою: поруч магазини, школи, дитячі садки та зупинки громадського транспорту.
Сучасний санвузол (душ + ванна )
Усі деталі при огляді квартири

























