Продається квартира Тернопіль, Тернопільська, Оболоня (№ 213-065-825)
Ціна: 29 000 $

Тернопіль, Тернопільська, Оболоня
Характеристики
| Ціна: | 29 000 $ |
|---|---|
| № об'єкта: | 213-065-825 |
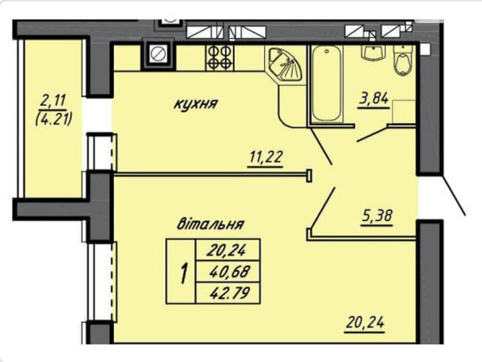
| Кімнат: | 1 |
| Поверх: | 4 / 9 |
| Площа: | 43 / - / - м2 |
Опис
Квартира у зданому цегляному будинку на зручному 4 поверсі. Вікна виходять на зелені насадження. . Є велика ніша, . Простора кухня. можлива переуступка. Квартира у 15 хв ходьби від центрального ринку. Тихий просторий двір. Можливий торг.






