Продається квартира Довженка О. вул., Тернопіль, Тернопільська, Східний масив (№ 213-062-329)
Ціна: 71 000 $

Довженка О. вул., Тернопіль, Тернопільська, Східний масив
Характеристики
| Ціна: | 71 000 $ |
|---|---|
| № об'єкта: | 213-062-329 |
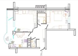
| Кімнат: | 2 |
| Поверх: | 3 / 10 ліфт |
| Площа: | 64 / - / 10 м2 |
| Санвузол: | 1 сумісний |
| Балкон: | балкон |
| Додатково: | новобудова |
Опис
Двохкімнатна обжита квартира у новобудові з газобетонними стінами (що забезпечує енергоефективність). Квартира розташована на зручному 3-му поверсі, кімнати на дві сторони, є доволі економною в опалюванні. В коридорі в кухні та в санвузлах вмонтовано теплу підлогу. Залишаються практично всі меблі та техніка (вбудований холодильник на кухні, пральна машинка, проведена сигналізація). У квартирі є засклений просторий балкон з кладовкою. На загальному коридорі є простір для кладови та вихід на велику сушку. Поруч розвинена інфраструктура - садочки, школи, сквер ім. О. Довженка, магазини (є міні-маркет у дворі будинку), гаражний кооператив. Уся прибудинкова територія знаходиться під відео-спостереженням. Можливий торг.





















